Ing. Vít Dolejší
Die Anfänge der Entwurfs – und Baupraxis standen im Sinne klassischen Holzbauten , Einfamilienhäusern und großen Entwicklungsprojekten .Ich konnte mir einen Überblick über anspruchsvollen Grossinvestitionen und kleinen Familieninvestments innerhalb der Familie und deren täglichen Problemen und Zukunftsplanung vorstellen.
Anschließende Kreation, bei der ich die gewonnenen Erfahrungen erfolgreich einsetzen konnte.
Ich wurde gefragt: „Was macht dir an diesem Job Spaß ? Und warum machst du das?“
Und ich habe geantwortet: ich tue das für die Menschen, ich erfühle ihre Träume und ihre Wünsche . Ich tue das, was mir auch immer viel Spaß macht und was auch Inhalt meines Leben ist! Und ich versuche meine Arbeit so gut wie ich kann tun mit den besten Ergebnissen.
Ing. Vít Dolejší
Miteigentümer Topeda, Chefarchitekt, Konstruktion und Produktion
Autorisierter Ingenieur der Kammer ČKAIT.
Mitglied der Tschechischen Handelskammer
Studium
2001 - 2006
Zertifikat des autorisierten ingenieurs
Als Mitglied der Kammer der zugelassenen Techniker und Ingenieure im Bauwesen ČKAIT habe ich ein staatliches Prüfungszeugnis erhalten, das für die Durchführung der Projektdokumentation in der Tschechischen Republik obligatorisch ist.
Ich besuche viele Seminare im Rahmen meines lebenslangen Lernens.
Následná tvorba, kde jsem dokázal úspěšně využít získaných zkušenosti.
Diese Projekte wurden und sind als sehr erfolgreich und voll funktionsfähig bewertet . Das sind hauptsächlich Massivholzkonstruktionen:
- Holzblockhütten und Holzgebäuden
- Beton – und Stahlkonstruktionen, Stahlgerüst
- klassische Mauerwerkskonstruktionen
- Massivholzkonstruktionen
- Holzblockgebäuden und Blockhütten
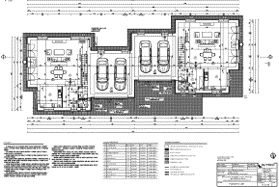
Holzblockhütten
Holzblockhütten sind Gebäude mit Wänden aus massiven Baustämmen , die an den Ecken mit einen Sattelverbindung mit typischen Stammüberlappungen verschraubt sind. Fachwerkhäuser sind Gebäude, die auf die Tradition der Fachwerkhäuser.
In der Tschechischen Republik basieren. Sie bestehen aus massiven Vierkantbalken ,die durch ein typisches Fischgelenk verbunden sind.
Ukázka realizace:
RD Zdiby, RD Kubín, RD Tmej, RD Kanice
Holzgebäude
Holzbauten sind Gebäude, bei denen die tragende Wandkonstruktion von Sandwichbauten aus massiven Holzprismen (verleimte Holzprofile) besteht.
Wir gestalten Gebäude überwiegend diffus offen. Bei einer geschlossenen Konstruktionsanforderung legen wir bei der Projektvorbereitung Wert auf alle Details dieser Lösung.
Während meines Praktikums habe ich ca. 20 Konstruktionen entworfen und realisiert.
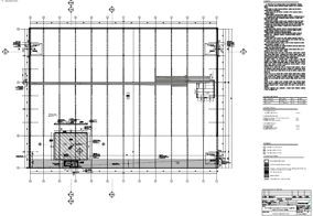
Beton- und stahlkonstruktionen
Diese Konstruktionen in meiner Ingenieurtätigkeit bedeuteten einen sehr interessanten Wechsel, als mich meine eigene Gestaltung der Projektdokumentation und die anschließende Umsetzung in die Welt der Pferde, in die Welt der Tiere und in das Reich der Menschen führte, die mit einer riesigen Führungskraft keine Chance hatten und die auch bei minimaler Meinungsverschiedenheit zu bestrafen. Die Menschen, die sich in dieser Gegend bewegen, sind offen für die Welt und die Lebenskunst.
Stahlbaukonstruktion
Diese Industriebauten sind ein sehr spezifischer Bauzweig .Die Vorbereitung , die Erstellung der Projektdokumentation und dann die Umsetzung sind mit einer sehr individueller Einstellung verbunden.
Diese Objekte sind hauptsächlich für eine besondere Art der Produktion, Aktivitäten und Dienstleistungen konzipiert.Und der zukünftiger Betrieb muss bereits in der Projektdokumentation ausführlich thematisiert werden.
Ukázka realizace:
Unipetrol: kotelna na polyethylénové jednotce pro společnost Cheminvest
Unipetrol: Sklad toxického hutního odpadu a Revitalizace HZS Unipetrol
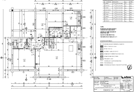
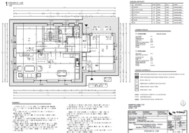
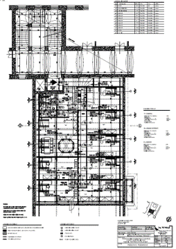
Klassische wandkonstruktionen
Es ist sehr angenehm, wenn ein Mensch zu dir kommt und sein Lebenstraum vorstellt – das Traumhaus , wofür man jahrelang Geld gespart hat. Das Haus stellt man sich in den schönsten Träumen vor. Man beginnt zu planen, zu entwerfen und zu bauen. Und deren Freude an eigenem Wohnen – das ist das schönste , was man den Menschen bieten kann.
Ukázka realizace:
RD Pitkovice, RD Koptová, RD Horní Kosov, RD Zvonějov
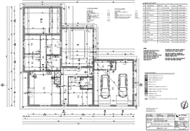
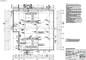
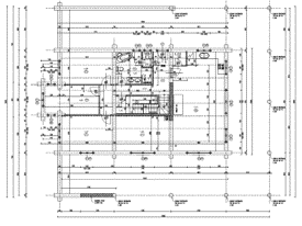
Andere Konstruktionen
Was wäre das Leben ohne kleinen Freuden , oder auch Großprojekten , die anders sind als die andere?
Entspannung im Garten , Freude am Kochen für Menschen oder die Fertigstellung der Projekten in der Denkmalzone.
Ukázka realizace:
Praha – Relaxační soukromá sauna
Kanceláře Rytiřský řád Křížovníků s červenou hvězdou – Praha u Karlova mostu.
Batelov – Dům pro seniory
Tanvald – Dům pro seniory
